Julien CHAMPALAUNE Négociateur
Télécharger la fiche
Nouveauté

Appartement 3 pièce(s) 2 chambre(s) 59.99 m²

Saint-Brevin-les-Pins (44250)
207 278 € Référence VAP150000748

A propos de ce bien

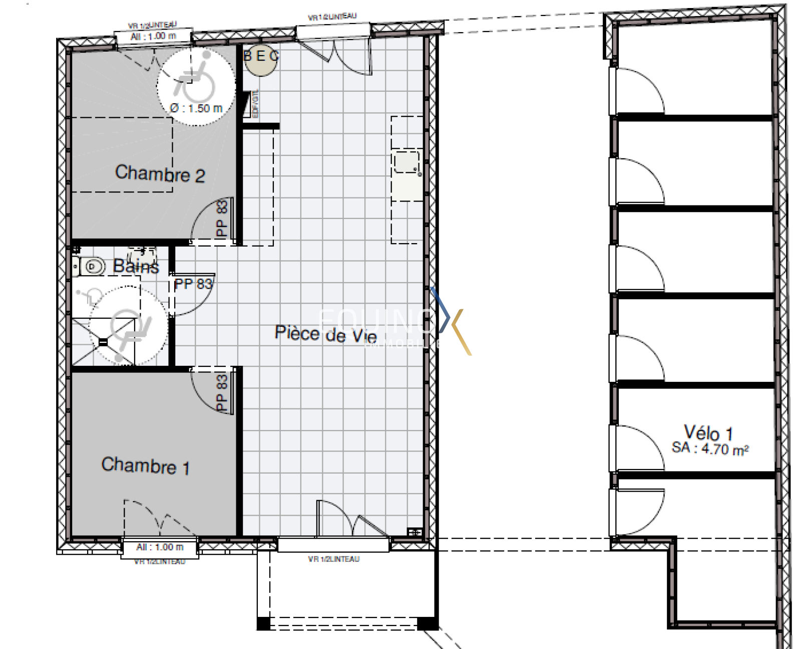
À VENDRE - Appartement Neuf en VEFA à Frossay – Livraison T4 2026

A 25 minutes de SAINT BREVIN, idéalement situé en plein cœur de Frossay, venez découvrir cet appartement neuf en rez-de-chaussée d’environ 60 m², conçu pour allier confort moderne et cadre de vie agréable.

Les atouts du bien :

  • Grande pièce de vie de 34 m² : lumineuse et fonctionnelle, idéale pour vos moments en famille ou entre amis

  • Cave privative : pratique pour le rangement

  • Place de parking incluse

  • À deux pas des commerces, écoles et services du centre-ville

Programme neuf – frais de notaire réduits – idéal pour un investissement locatif ou une résidence principale
Confort thermique et acoustique aux normes RE2020

Livraison prévue : 4e trimestre 2026

Opportunité rare à Frossay – Réservez dès maintenant votre futur logement dans un cadre de vie paisible, entre ville et nature.

Contactez-nous dès aujourd’hui pour en savoir plus au O7 82 I5 6I I7 pour réserver votre appartement.

PTZ possible sous conditions, Frais de notaire réduits.

Photos non contractuelles.

Caractéristiques de ce bien

  • Surface 59,99 m²
  • carrez 60 m²
  • séjour 34,93 m²
  • 2 chambre(s)
  • 1 salle(s) d'eau
  • construit en 2026
  • kitchenette (semi-équipée)
  • Chauffage individuel : radiateur (pompe à chaleur)
  • 1 parking(s)
  • exposition Nord-Sud
  • 2 étage(s)
  • vue jardin
  • cave
  • balcon
  • terrasse
  • accès handicapé

Diagnostics énergétiques

DPE
GES
DPE vierge

Informations financières

Prix de vente 207 278 € Les honoraires d'agence seront intégralement à la charge du vendeur

Informations de copropriété

Copropriété Oui
Lot n° 1
Nombre de lots 15

Autour du bien

  • Commerces et santé
  • Loisirs
  • Ecoles
  • Transports
  • Pratique

Calcul des mensualités

* Champs obligatoires