Hervé DUPE Négociateur
Télécharger la fiche

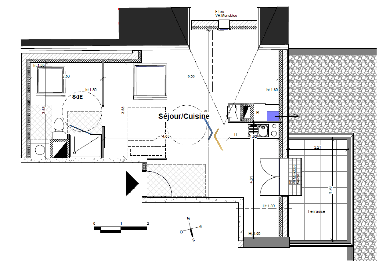
Studio 1 pièce(s) 31.44 m²

Carquefou (44470)
182 800 € Référence VST210000665

A propos de ce bien

Carquefou Centre – Dernier étage – Livraison T4 2027

Dans une résidence neuve idéalement située en plein cœur de Carquefou, découvrez ce charmant T1 de 31,44 m² Carrez (47,42 m² au sol) situé au 2ème et dernier étage, avec terrasse exposée Est et parking en sous-sol.

Vous apprécierez au quotidien la proximité immédiate de toutes les commodités : commerces, écoles, collège, médiathèque, pharmacie… tout se fait à pied !

Les + du bien :

- Dernier étage, au calme

- Belle terrasse de 8,35 m² pour profiter de l’extérieur

- Exposition Est offrant une belle luminosité matinale

- Place de parking en sous-sol

- Éligible aux dispositifs LLI et LMNP : idéal investisseur !

- Livraison prévue 4ème trimestre 2027

Prix : 182 800 € TTC

Caractéristiques de ce bien

  • Surface 31,44 m²
  • 1 salle(s) d'eau
  • exposition Est
  • 2ème étage
  • terrasse
  • quartier centre carquefou

Diagnostics énergétiques

DPE
GES
DPE non concerné

Informations financières

Prix de vente honoraires TTC inclus 182 800 €

Informations de copropriété

Copropriété Oui

Autour du bien

  • Commerces et santé
  • Loisirs
  • Ecoles
  • Transports
  • Pratique

Calcul des mensualités

* Champs obligatoires